Venta en Rentabilidad Madrid – Paseo Sta. María de la Cabeza
GeyHache comercializa la venta en rentabilidad de local de 420m2…
Venta 920.000€ Rentabilidad: 4,75%
Calle de Ferraz, Argüelles, Moncloa-Aravaca, Madrid, Comunidad de Madrid, 28008, España
Traspaso
Alquiler: 3.970€
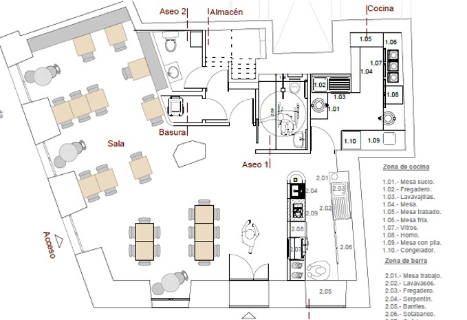
GeyHache comercializa el traspaso de bar con salida de humos en Arguelles. El local se encuentra ubicado muy próximo al Templo de Debob y al Palacio de Liria.
dispone de 114 m2 distribuidos en 90.55mw en planta calle y 23.5m2 en planta sótano. Completamente equipado y con alta visibilidad dado que tiene una fachada en esquina de mas de 10 metros lineales.
Licencia de bar con aforo par 56 personas
Condiciones económicas:
Alquiler: 3.970€ / Traspaso: 60.000€ / Fianza: 2 meses / Garantias: 4 meses
Gastos de comunidad e IBI a cargo del inquilino
Honorarios: una mensualidad + IVA a cargo del inquilino
GeyHache comercializa la venta en rentabilidad de local de 420m2…
Venta 920.000€ Rentabilidad: 4,75%
GeyHache comercializa la venta en rentabilidad de local comercial en…
Venta 550.000€ Rentabilidad: 5.31%