Alquiler local comercial Plaza República Dominicana (Madrid)
GeyHache comercializa en Alquiler local en la Plaza República Dominicana,…
Alquiler: 4.500€
Calle de José Abascal, Ríos Rosas, Chamberí, Madrid, Comunidad de Madrid, 28003, España
Alquiler
Alquiler 5.000€
GeyHache comercializa el ALQUILER de local comercial en la calle José Abascal’
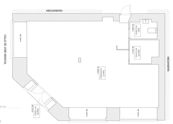
Superficie: 63,13 metros construidos y 57,05 metros útiles totalmente diáfanos en planta calle y con una altura libre de 4 metros. Fachada: 14 metros haciendo chaflán entre las calles José Abascal y Ponzano. Extraordinaria visibilidad.
El local no cuenta con salida de humos.
Condiciones económicas:
Alquiler: 5.000€ / Fianza: 2 meses / Garantias: 4 meses
Honorarios: una mensualidad + IVA a cargo nuevo inquilino
GeyHache comercializa en Alquiler local en la Plaza República Dominicana,…
Alquiler: 4.500€
GeyHache vende en rentabilidad pelquería en calle Pelayo de Madrid.…
Venta 740.000€ Rentabilidad: 4,11%